上海古都辦公室裝修設計公司案例之黃浦區城匯大廈醫療博醫辦公室設計效果。
類型
辦公空間
上海古都辦公室裝修設計公司案例之黃浦區城匯大廈醫療博醫辦公室設計效果。
辦公空間
上海古都辦公室裝修設計公司案例之黃浦區城匯大廈醫療博醫辦公室設計效果。

黃浦區城匯大廈醫療博醫辦公室原始平面圖

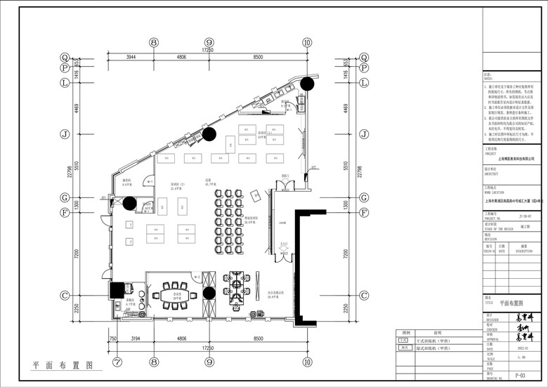
黃浦區城匯大廈醫療博醫辦公室平米布局圖

黃浦區城匯大廈醫療博醫辦公室辦公區設計效果

黃浦區城匯大廈醫療博醫辦公室培訓區設計效果

黃浦區城匯大廈醫療博醫辦公室展示區設計效果

黃浦區城匯大廈醫療博醫辦公室展示區設計效果

黃浦區城匯大廈醫療博醫辦公室會議區設計效果

黃浦區城匯大廈醫療博醫辦公室茶水間設計效果

黃浦區城匯大廈醫療博醫辦公室走廊過道設計效果

黃浦區城匯大廈醫療博醫辦公室文化墻設計效果